5. semester VUE

Valgfri uddannelses element

Som en del af pensum på 5. semester fik jeg som opgave at udvælge en entreprise, som jeg så skulle lave udbud til. Her valgte jeg tømrerentreprisen afgrænset til etagedækkene i bygningen.

Udbudsmaterialet skulle bestå af Udbudsbrev, tilbudsliste, udbudstidsplan, arbejdsbeskrivelse, plantegninger, snittegninger og detaljetegninger.

Beskrivelse / tilbudsliste

Tidsplan

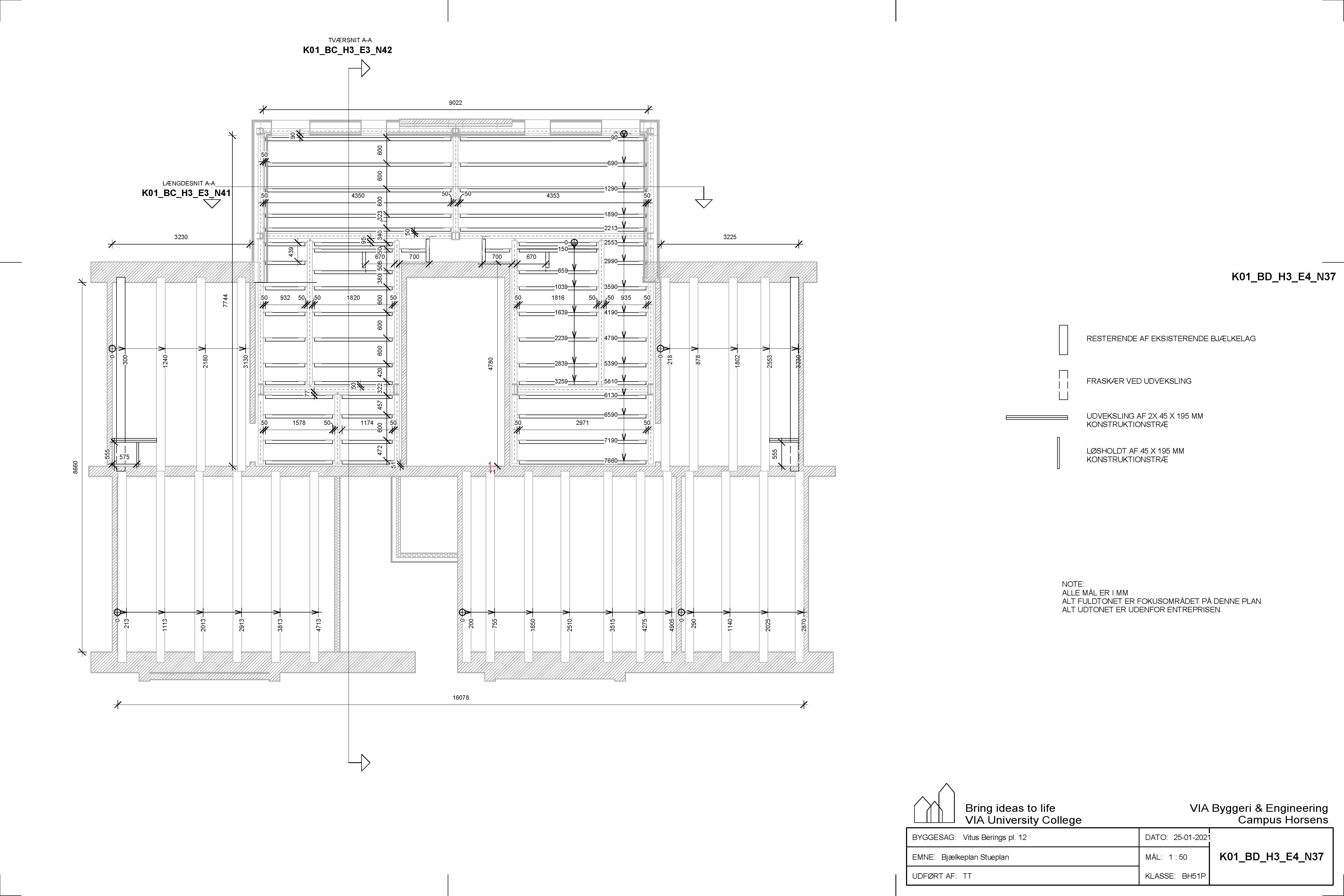
Plan-tegninger

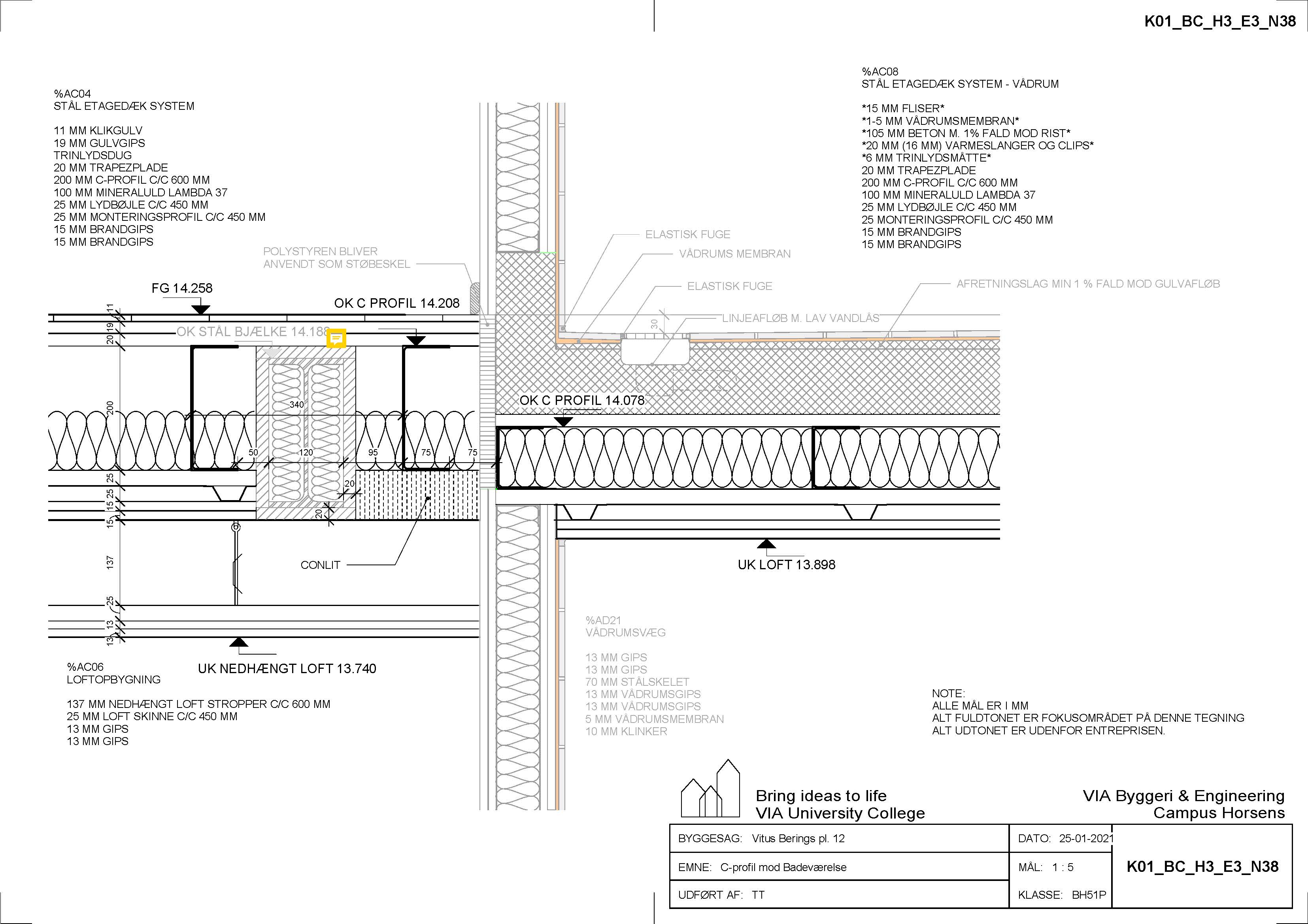
Detalje-tegninger

Snit-tegninger

Reflektion over opgaven

Dette var første gang jeg har udført udbudsmateriale. Udbudsmaterialet skulle evalueres som en del af semestereksamen, hvor jeg endte med at få karakteren 12 for det udarbejdet materiale. Det var meget spændende og lærerigt, at arbejde med tanken om at materialet skulle bruges til at lave udbud ud fra. Så her skulle forståelsen af det på tegninger være helt i top.

Ydermere var det en udfordrende oplevelse at udarbejde arbejdsbeskrivelsen da det også var første gang jeg har arbejdet med beskrivelserne fra Molio.